Description
Small House Plans 4.5×12 Meters 2 Beds Gable Roof Style 15×40 Feet. This villa is modeling by SAM-ARCHITECT With 1 stories level. It’s has 2 bedrooms. Est. Price around 13k-16k usd.
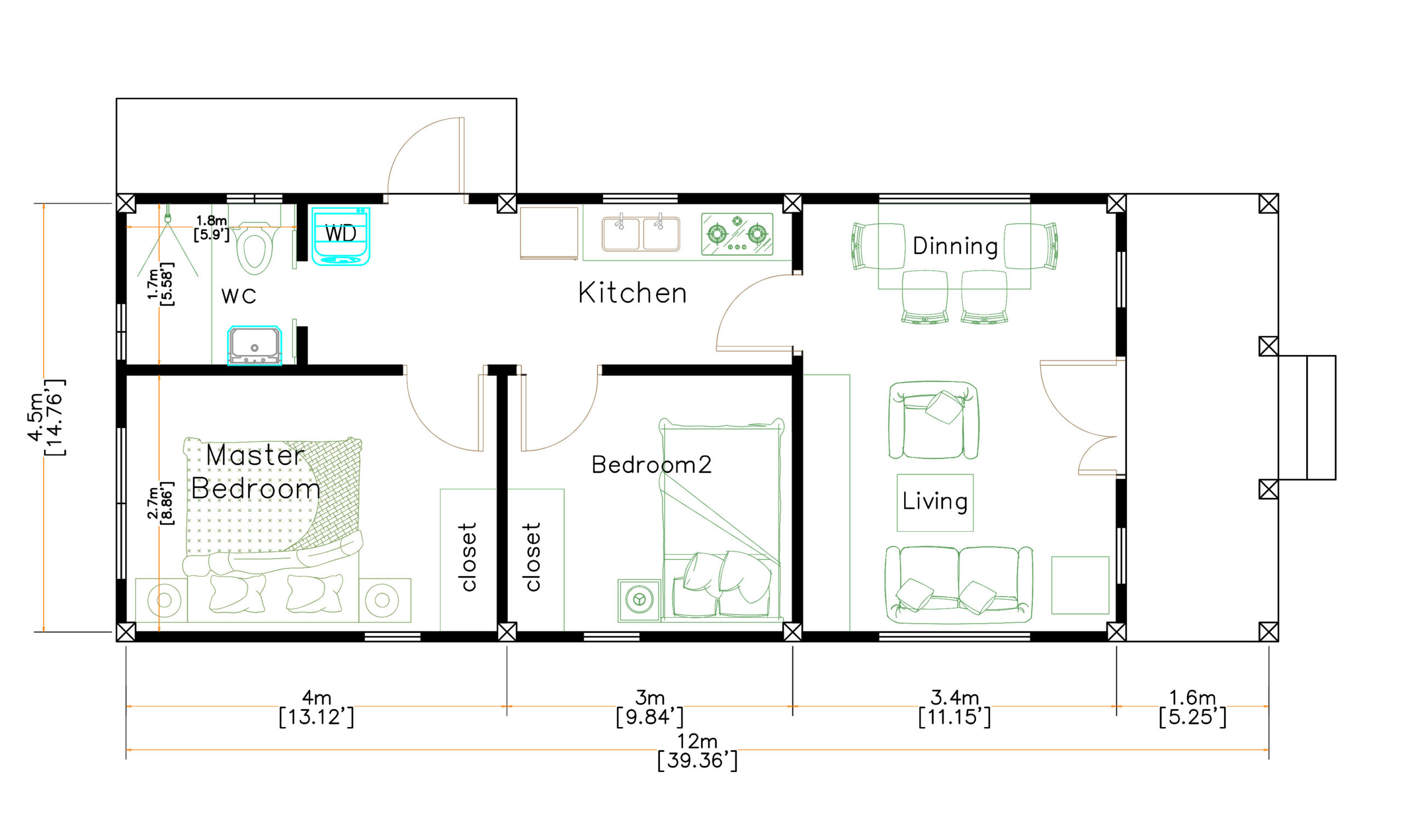
Small House Plans 4.5×12 Ground Floor Plans Has:
Firstly, car Parking is at the Out side of the house. A nice Terrace entrance in front of the house 1.6×4.5 meters. When we are going from front door, a small Living with dinning room 3.4×4.5 meter is very perfect for this house it is nice and modern. Brightly Kitchen 3×1.7 meter, it is clean and beautiful. A multi Bathroom size 1.7×1.8 meters. The washing machine is in front of the toilet.
The Master Bedroom size is 2.7×4 meters, it have a big glass window with a queen size bed, Makeup desk and closet, Bedroom 2 size 2.7×3 meter.
Exterior Small House Plans 4.5×12:
Similarly, to the roof border color we choose a bite dark and light color combination together with a big glass door and window to get the house look so beautiful and Modern house.


The Roof Tile:
Finally, The Hip roof type is made from cement tiles that cover above Gypsum board ceiling . It is make the house look simple and modern.
The Back Elevation:
Even this is the back of the house, we also want it look beautiful. This house have a big door to get out of the house.
House Short Description:
Ground floor:
-Car Park is out side of the house
-Living room
-Kitchen and Dinning
-Storage
-Master Bedroom with bathroom
-Bedroom 2
-Public bathroom
First floor:
Roof tiles
PLEASE MAKE SURE YOU HAVE CHECK the free sample plans
The 3D Bird View:
Interior design 3d:
For interior design of this house we do a simple design as it will lower cost the price to build.
The Elevation 3d:






The PDF Layout Plans:






Buy this house plan:
This is a PDF Plan available for Instant Download.
2-Bedrooms 1-Bath home with mini washer/dryer room.
Building size: 15 feet wide, 40 feet deep. 4.5×12 meter 1 floor
Roof Type: Gable roof (cement tile or other supported type)
Foundation: Concrete or other supported material
For the reverse plan, please see other Model.
PLANS INCLUDE:
Footing, Beam, Column Location plan
Exterior / Interior wall Dimension Plan
Roof Beam Plan
Roof Plan
Elevations plans
Cross Section plans
Ceiling Lighting location Plan
You are purchasing the PDF file for this plan. Print it out whenever you like, as many times as you like.
Plan prints to A4 paper.
CUSTOM PLANS:
Unfortunately I’m unable to do custom plans at this time.
DISCLAIMER:
These plans were produced by myself and were not prepared by nor checked by a licensed architect and/or engineer.
I do not represent nor imply myself to be a licensed architect and/or licensed engineer.
Enjoy these plans but use them at your own discretion.
Your files will be available to download once payment is confirmed.
I don’t accept returns, exchanges, or cancellations. But please contact me if you have any problems with your order.
Your could Reach Us: Personal FB:Â Sophoat Toch
Facebook Page:Â Sam Architect
Facebook Group:Â Home Design Idea
More Plans Download On Youtube:Â Sam Phoas Channel
If you think this Plan is useful for you. Please like and share.
Other House plan:
New House Design 12×14 Meter 40×46 Feet
Best Small House Designs 9×6 Meter 30×20 Feet
Small Cottage Designs 9×6 Meter 30×20 Feet
Small Home Floor Plans 9×6 Meter 30×20 Feet
Farmhouse Plans 9×6 Meter 30×20 Feet
Modern Small House Design 7×7 Meter 23×23 Feet
Small Cabin Plans 7×7 Meter 23×23 Feet
Plan Design 23×23 Feet 7×7 Meter
Small Design home 7×7 Meter 23×23 Feet One Bed
House Plan Drawing 6×10 Meters 20×33 Feet 2 Beds

















Reviews
There are no reviews yet.