Description
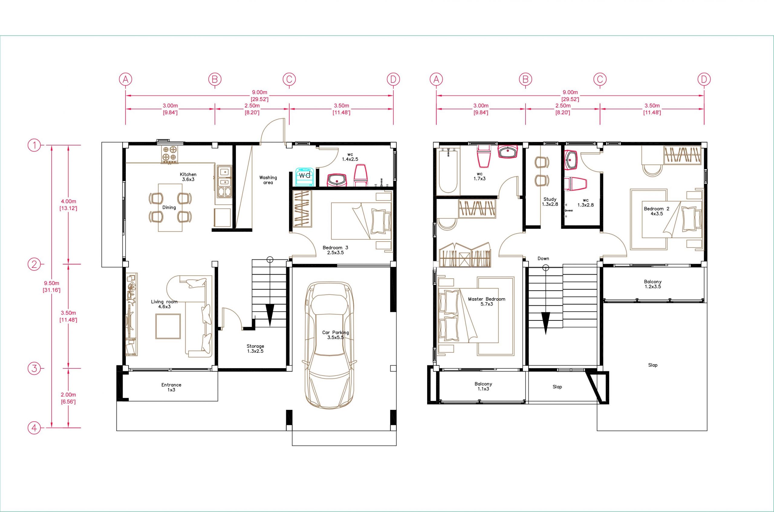
30×31 Feet Small House Design 9×9.5 Meter 3 Bedrooms Full PDF Plan. This villa is modeling by SAM-ARCHITECT With 2 stories level. It’s has 3 bedrooms. Est. Price around 40-50k usd construction only, furniture not include.
30×31 Feet Small House Ground Floor Plans Has:
At Ground floor, 1 car Parking is at the right side of the house 3.5×5.5 meter. A nice Terrace entrance in front of the house size 1×3 meters. When we are going from front door, a Living 3.6×3 meters is very perfect for this house it is nice and modern. Brightly Kitchen 3.6×3 meters with Dining table, it is clean and beautiful. Storage is under the stair 1.3×2.5 meter. Bathroom 1.4×2.5 meter and Washing Area. Bedroom 3 size is 2.3×3.5 meter
First floor: the Master Bedroom size is 5.7×3 meters attached with bathroom 1.7×3 meters, it also has a big glass door to balcony 1.1×3 meter with a queen size bed, Makeup desk and walk in closet. Bedroom 2 size 4×3.5 meter with bathroom 1.3×2.8 meter and balcony 1.2×3.5. Study area 1.3×2.8 meter.
Exterior 30×31 Feet Small House:
Similarly, to the roof border color we choose a bite dark and light color combination together with a big glass door and window to get the house look so beautiful and Modern house.
The Hip Roof Tile:
Finally, The Hip roof type is made from zine roof tiles that cover above Gypsum board ceiling . It is make the house look simple and modern.
The Back Elevation:
Even this is the back of the house, we also want it look beautiful. This house have a big door to get out of the house.
House Short Description:
Ground floor:
-1 Car Park is out side of the house
-Living room
-Kitchen and Dinning
-Storage
-Public bathroom
First floor:
-3 Bedrooms
-2 Bathrooms
-Balcony, study room
PLEASE MAKE SURE YOU HAVE CHECK the free sample plans
The 3D Bird View:
Interior design 3d:
For interior design of this house we do a simple design as it will lower cost the price to build.
The Elevation 3d:
The PDF Layout Plans:
Buy this house plan:
This is a PDF Plan available for Instant Download.
3-Bedrooms 3-Baths home with mini washer/dryer room.
Building size: 30 feet wide, 31 feet deep. 9×9.5 meter 2 floor
Roof Type: Hip roof (cement tile or other supported type)
Foundation: Concrete or other supported material
For the reverse plan, please see other Model.
PLANS INCLUDE:
Footing, Beam, Column Location plan
Exterior / Interior wall Dimension Plan
Roof Beam Plan
Roof Plan
Elevations plans
Cross Section plans
You are purchasing the PDF file for this plan. Print it out whenever you like, as many times as you like.
Plan prints to A4 paper.
CUSTOM PLANS:
Unfortunately I’m unable to do custom plans at this time.
DISCLAIMER:
These plans were produced by myself and were not prepared by nor checked by a licensed architect and/or engineer.
I do not represent nor imply myself to be a licensed architect and/or licensed engineer.
Enjoy these plans but use them at your own discretion.
Your files will be available to download once payment is confirmed.
I don’t accept returns, exchanges, or cancellations. But please contact me if you have any problems with your order.
Your could Reach Us: Personal FB:Â Sophoat Toch
Facebook Page:Â Sam Architect
Facebook Group:Â Home Design Idea
More Plans Download On Youtube:Â Sam Phoas Channel
If you think this Plan is useful for you. Please like and share.
Other House plan:
New House Design 12×14 Meter 40×46 Feet
Best Small House Designs 9×6 Meter 30×20 Feet
Small Cottage Designs 9×6 Meter 30×20 Feet
Small Home Floor Plans 9×6 Meter 30×20 Feet
Farmhouse Plans 9×6 Meter 30×20 Feet
Modern Small House Design 7×7 Meter 23×23 Feet
Small Cabin Plans 7×7 Meter 23×23 Feet
Plan Design 23×23 Feet 7×7 Meter
Small Design home 7×7 Meter 23×23 Feet One Bed
House Plan Drawing 6×10 Meters 20×33 Feet 2 Beds











Reviews
There are no reviews yet.